Digital Marketing Case Study Of A Legal Service Provider Company

Cost Per Lead: $80

Get Started Now

Project Overview

Design and Development of 3D models of Home with construction documents.

Get Started Now
 Software Development Services

Platform

Website

 Software Development Services

Region

Australia

 Software Development Services

Industry

Business

 Software Development Services

Integration

Autodesk AutoCAD, Sketchup, Keyshot

Objective

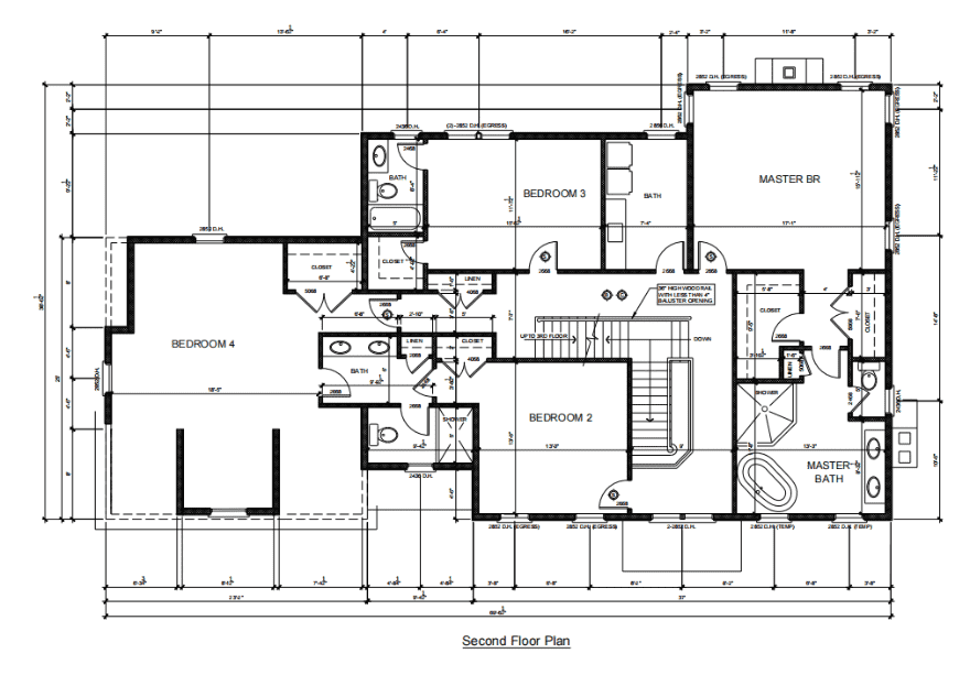
Objective of Project was to provide output file in dwg, jpg formats for Construction and presentation purpose.

Get Started Now

Project Brief

Designing of home by using Sketch Up Software. Creation of 3D model, Floor Plans, Elevations etc of home.

Get Started Now

Key Challenges

We received only one pdf file with respect to which we had to design the complete Home, create drawings for various plans.

Get Started Now

Key Solutions

Our team has offered all the solutions to fulfill the client’s expectations of output files in the desired formats. Output formats was provided in dwg, PDF, jpg etc

Get Started Now

Key Results

Satisfactory Drawings with details and Render image

Get Started Now

Technology Used